1. Accueil
  2. Joints de dilatation spécifiques
  3. Entreprise spécialisée en fabrication et vente de joints de dilatation avec pattes de scellement autour de Versailles 78
Retour

Entreprise spécialisée en fabrication et vente de joints de dilatation avec pattes de scellement autour de Versailles 78

Vous recherchez une entreprise proposant la fabrication et la vente de joints de dilatation avec soudure de pattes de scellement autour de Versailles 78 ? Les Ateliers de Breau vous accueillent pour vous proposer son expertise en matière de confection de joints de dilatation et de fractionnement pour aider les professionnels à réaliser leurs projets. 

 

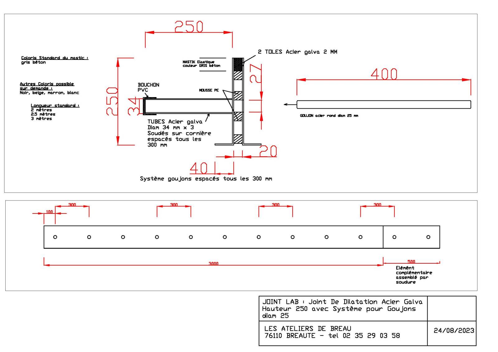
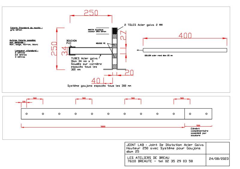
Les joints de dilatation avec soudure de pattes de scellement sont utilisés principalement dans les structures en béton, en maçonnerie ou en asphalte. Ils permettent de gérer les mouvements et les expansions causés par les variations de température, le tassement du sol ou les vibrations. Voici les usages principaux :

  1. Routes et autoroutes : Ces joints permettent de maintenir l'intégrité des chaussées en absorbant les mouvements dus aux changements de température et aux charges des véhicules.

  2. Ponts : Les joints de dilatation avec pattes de scellement sont essentiels pour les ponts afin d'éviter les fissures et d'assurer une transition en douceur entre les segments du pont.

  3. Structures en béton : Dans les grandes dalles de béton ou les structures en béton préfabriqué, ces joints aident à prévenir les fissures et à gérer les mouvements dus au retrait ou à l'expansion du béton.

  4. Parkings et sols industriels : Ils permettent de gérer les mouvements des grandes surfaces de béton ou d'asphalte soumises à des charges lourdes et des conditions climatiques variées.

Les pattes de scellement sont soudées pour fixer le joint de dilatation de manière sécurisée, assurant ainsi une bonne stabilité et une performance durable.

 

N’attendez plus et faites appels à l’entreprise Les Ateliers de Breau pour la fabrication et la vente de vos joints de dilatation autour de Versailles 78.

Nous écrire
Les champs indiqués par un astérisque (*) sont obligatoires
Plus de 15 ans<br> de savoir-faire
Plus de 15 ans
de savoir-faire
Joints standard disponible jusqu'à 3m
Joints standard disponible jusqu'à 3m
Fabrication de joints sur-mesure et spécifiques
Fabrication de joints sur-mesure et spécifiques
Vous souhaitez des renseignements
sur nos prestations ?
Contactez-nous