1. Accueil
  2. Joints de dilatation avec goujons
  3. Joint de dilatation avec goujons pour projet aménagement urbain
Retour

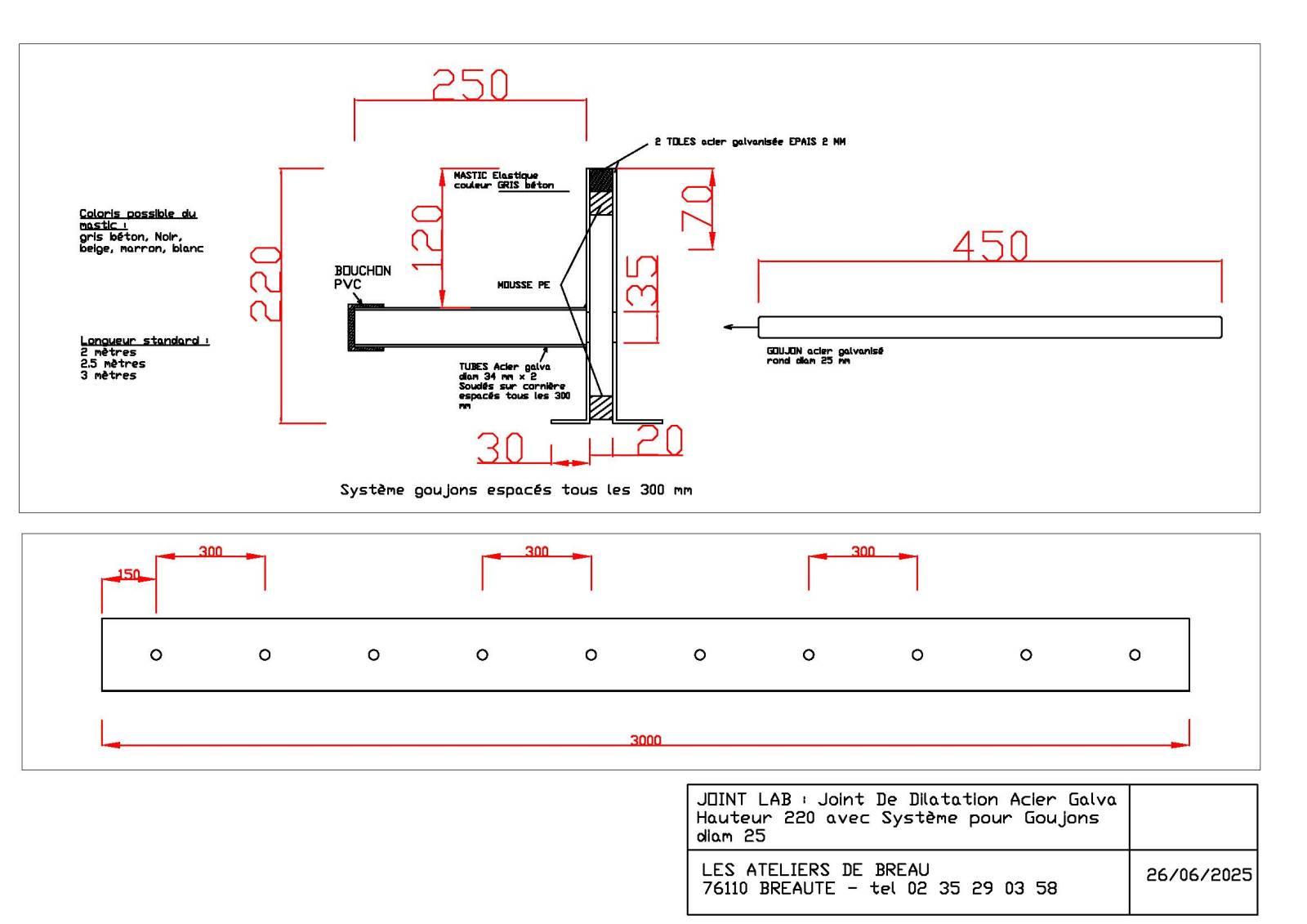
Joint de dilatation avec goujons pour projet aménagement urbain

Les joints de dilatation avec goujons sont essentiels pour garantir la durabilité des infrastructures urbaines. Ils absorbent les mouvements liés aux variations thermiques, évitant ainsi fissures et désordres structurels.

Les Ateliers de Bréau proposent des solutions sur-mesure adaptées aux projets d'aménagement urbain, alliant précision et qualité. Notre adaptabilité dans le dimensionnement des joints préfabriqués garantit une performance optimale sur le long terme.

Les Ateliers de Bréau accompagnent vos projets en apportant des solutions techniques robustes et efficaces.

Contactez-nous pour obtenir une étude personnalisée et un devis adapté à vos besoins spécifiques.

Nous écrire
Les champs indiqués par un astérisque (*) sont obligatoires
À découvrir
Joint dilatation trottoirs

Joint de dilatation dalle béton pour espaces piéton

Faites confiance aux Ateliers de Bréau pour un travail de qualité et des solutions sur mesure. Demandez votre devis personnalisé !
En savoir plus
Joint de dilatation avec goujons surface béton pour voirie légère

Joint de dilatation avec goujons surface béton pour voirie légère

Découvrez nos joints de dilatation avec goujons spécialement conçus pour les surfaces béton des voiries légères. Durabilité, résistance et conformité aux normes. Contactez Les Ateliers de Bréau pour des solutions fiables et sur mesure.
En savoir plus
Joint dilatation avec goujons pour surface béton parking

Joint dilatation avec goujons pour surface béton parking

Découvrez comment les Ateliers de Bréau utilisent des goujons dans les joints dilatation pour optimiser la durabilité des surfaces béton des parkings. Expertise et solutions professionnelles.
En savoir plus
Plus de 15 ans<br> de savoir-faire
Plus de 15 ans
de savoir-faire
Joints standard disponible jusqu'à 3m
Joints standard disponible jusqu'à 3m
Fabrication de joints sur-mesure et spécifiques
Fabrication de joints sur-mesure et spécifiques
Vous souhaitez des renseignements
sur nos prestations ?
Contactez-nous