1. Accueil
  2. Joints de dilatation avec goujons
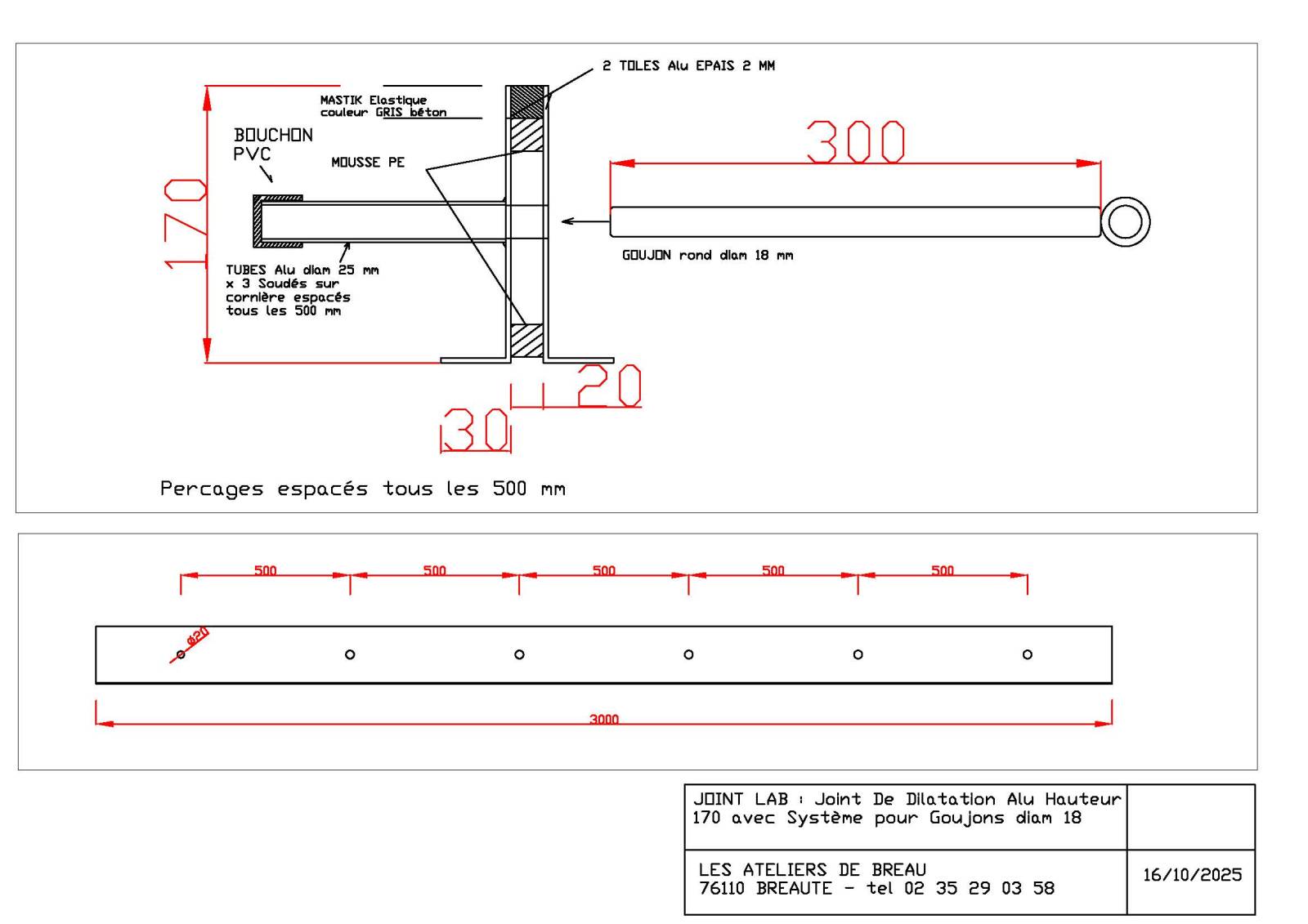
  3. Joint dilatation avec goujons pour surface béton parking
Retour

Joint dilatation avec goujons pour surface béton parking

Les joints de dilatation jouent un rôle crucial dans la durabilité des surfaces béton des parkings. L’intégration de goujons à nos solutions de joint de dilatation garantit une répartition homogène des charges tout en limitant les risques de fissuration.

Les Ateliers de Bréau sont à votre disposition pour étudier les solutions adaptées aux contraintes des surfaces de parking. Nos goujons permettent une continuité de la dalle sans compromettre sa capacité à absorber les mouvements structurels.

Vous souhaitez optimiser la durabilité de votre surface béton tout en assurant une longévité accrue à votre parkingContactez Les Ateliers de Bréau pour une expertise sur mesure.

Nous écrire
Les champs indiqués par un astérisque (*) sont obligatoires
À découvrir
Joint dilatation trottoirs

Joint de dilatation dalle béton pour espaces piéton

Faites confiance aux Ateliers de Bréau pour un travail de qualité et des solutions sur mesure. Demandez votre devis personnalisé !
En savoir plus
Joint de dilatation avec goujons pour projet aménagement urbain

Joint de dilatation avec goujons pour projet aménagement urbain

Découvrez nos solutions de joints de dilatation avec goujons pour vos projets d'aménagement urbain. Les Ateliers de Bréau vous garantissent des produits durables et sur-mesure. Contactez-nous pour une expertise et un devis adapté.
En savoir plus
Joint de dilatation avec goujons surface béton pour voirie légère

Joint de dilatation avec goujons surface béton pour voirie légère

Découvrez nos joints de dilatation avec goujons spécialement conçus pour les surfaces béton des voiries légères. Durabilité, résistance et conformité aux normes. Contactez Les Ateliers de Bréau pour des solutions fiables et sur mesure.
En savoir plus
Plus de 15 ans<br> de savoir-faire
Plus de 15 ans
de savoir-faire
Joints standard disponible jusqu'à 3m
Joints standard disponible jusqu'à 3m
Fabrication de joints sur-mesure et spécifiques
Fabrication de joints sur-mesure et spécifiques
Vous souhaitez des renseignements
sur nos prestations ?
Contactez-nous