Nos activités

Fabrication de Joints de dilatation Alu Hauteur 12 cm standrad gris pour surface piètonne béton secteur proche Le Havr

Fabrication de Joints de dilatation Alu Hauteur 12 cm standrad gris pour surface piètonne béton secteur proche Le Havr

Découvrez la fabrication spécialisée de joints de dilatation aluminium 12 cm par Les Ateliers De Bréau. Solutions robustes pour surfaces piétonnes béton proche Le Havre en Seine Maritime. Performance, précision, durabilité. Contact recommandé pour projets techniques nécessitant des profils aluminium professionnels.
En savoir plus
Distributeur spécialisé en fabrication de joints de dilatation dalle béton autour de Reims 51 dans la Marne

Distributeur spécialisé en fabrication de joints de dilatation dalle béton autour de Reims 51 dans la Marne

Profitez de solutions adaptées pour réussir vos projets de dalle béton.
En savoir plus
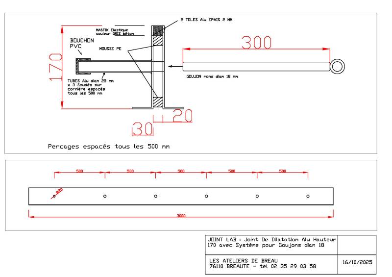
Joint dilatation avec goujons pour surface béton parking

Joint dilatation avec goujons pour surface béton parking

Découvrez comment les Ateliers de Bréau utilisent des goujons dans les joints dilatation pour optimiser la durabilité des surfaces béton des parkings. Expertise et solutions professionnelles.
En savoir plus
Joint de dilatation avec goujons pour projet aménagement urbain

Joint de dilatation avec goujons pour projet aménagement urbain

Découvrez nos solutions de joints de dilatation avec goujons pour vos projets d'aménagement urbain. Les Ateliers de Bréau vous garantissent des produits durables et sur-mesure. Contactez-nous pour une expertise et un devis adapté.
En savoir plus
Joint de dilatation avec goujons surface béton pour voirie légère

Joint de dilatation avec goujons surface béton pour voirie légère

Découvrez nos joints de dilatation avec goujons spécialement conçus pour les surfaces béton des voiries légères. Durabilité, résistance et conformité aux normes. Contactez Les Ateliers de Bréau pour des solutions fiables et sur mesure.
En savoir plus
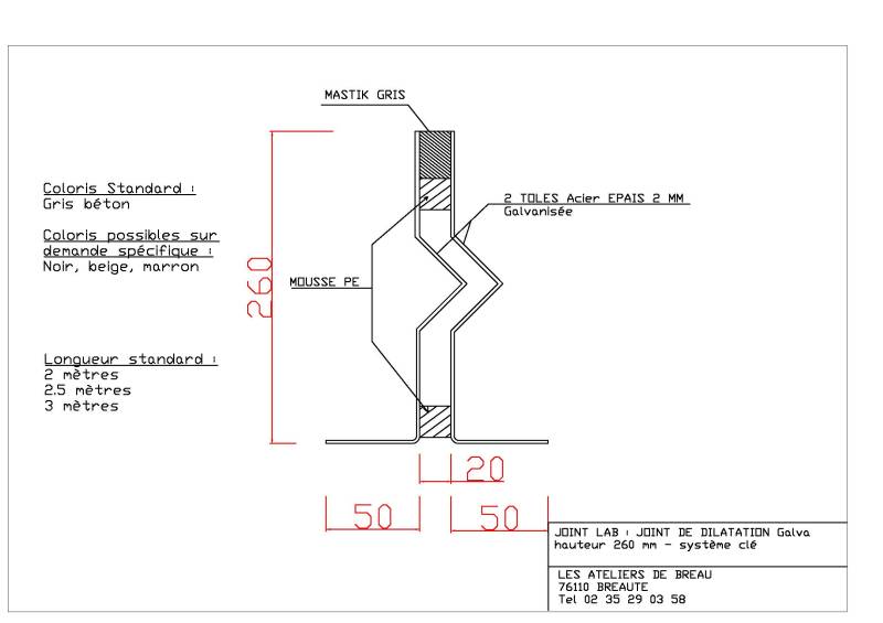
Joint de dilatation pour dalle béton sur-mesure

Joint de dilatation pour dalle béton sur-mesure

Les Ateliers de Bréau conçoivent des joints de dilatation pour dalle béton sur-mesure. Profitez de notre expertise pour sécuriser vos ouvrages. Contactez-nous pour un devis adapté.
En savoir plus
Joint de dilatation dalle béton pour station de bus

Joint de dilatation dalle béton pour station de bus

Les Ateliers de Bréau fabriquent des joints de dilatation pour dalles béton pour garantir la durabilité de votre station d’arrêt de bus. Sollicitez nos experts et optimisez la longévité de vos infrastructures.
En savoir plus
Fabrication de joints de dilatation pour une route ou un trottoir en pavés près de Lille

Fabrication de joints de dilatation pour une route ou un trottoir en pavés près de Lille

La fabrication de joints de dilatation pour les routes et trottoirs en pavés près de Lille est essentielle pour garantir la durabilité et la sécurité des infrastructures. Ces joints jouent un rôle crucial dans la gestion des mouvements et des expansions causés par les variations de température, le...
En savoir plus
Plus de 15 ans<br> de savoir-faire
Plus de 15 ans
de savoir-faire
Joints standard disponible jusqu'à 3m
Joints standard disponible jusqu'à 3m
Fabrication de joints sur-mesure et spécifiques
Fabrication de joints sur-mesure et spécifiques
Vous souhaitez des renseignements
sur nos prestations ?
Contactez-nous