1. Accueil
  2. Joints de dilatation avec goujons
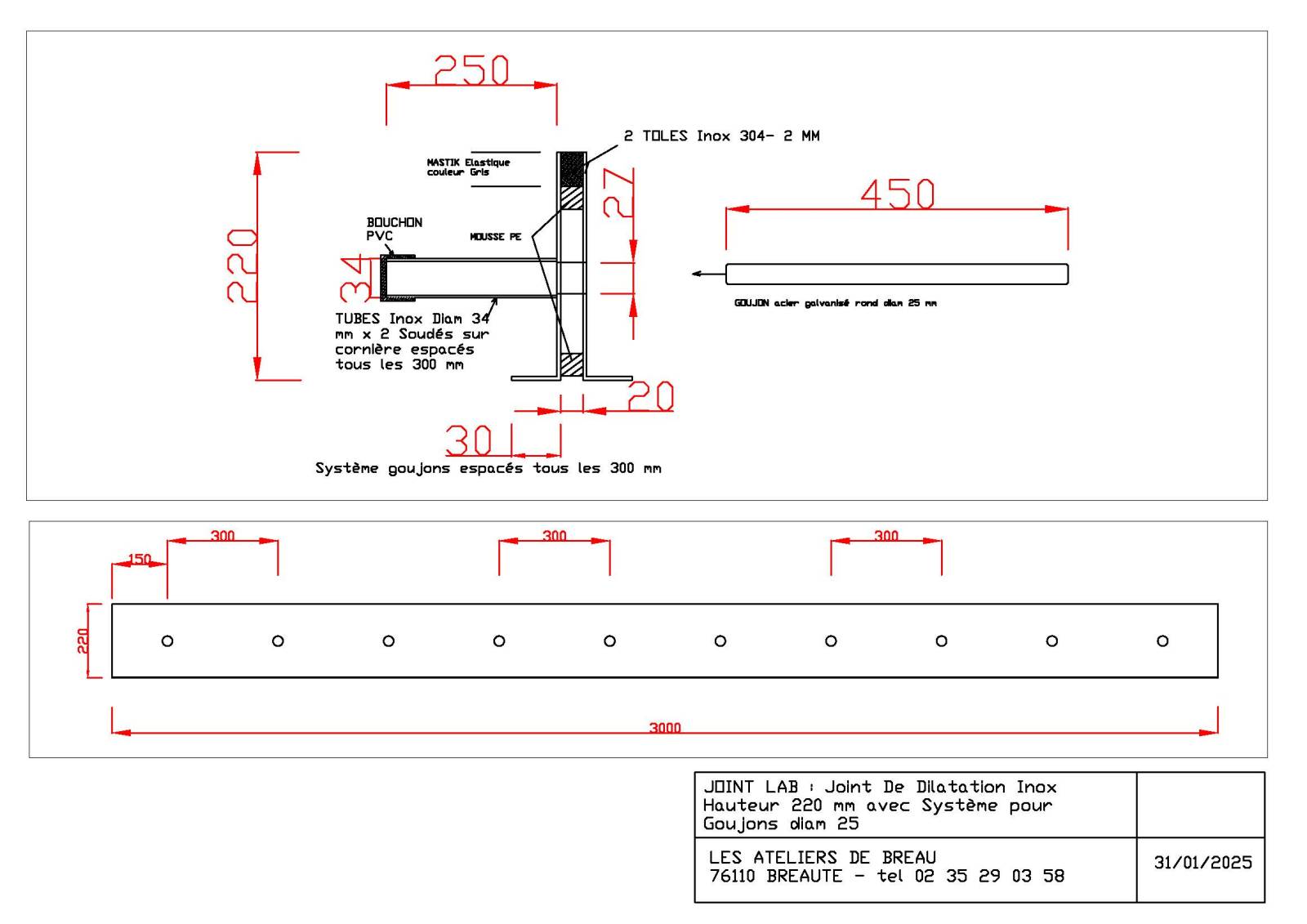
  3. Joint de dilatation avec goujons surface béton pour voirie légère
Retour

Joint de dilatation avec goujons surface béton pour voirie légère

Les joints de dilatation avec goujons sont essentiels pour préserver la durabilité des surfaces béton destinées à la voirie légère. Ils garantissent la répartition des charges et évitent les fissurations prématurées. Les goujons intégrés assurent une liaison efficace des dalles de béton, permettant une meilleure résistance aux contraintes mécaniques tout en assurant la flexibilité nécessaire aux dilatations thermiques.

Chez Les Ateliers de Bréau, nous proposons des solutions sur mesure, adaptées à vos besoins spécifiques d’infrastructures routières légères. Nos solutions préfabriqués en atelier suivant vos besoins vous permettent d’offrir à vos clients l’assurance de réalisations de qualité supérieure et conformes aux exigences de votre métier.

Pour toute demande d’information ou de devis sur nos solutions de joints de dilatation pour voiries légères, contactez-nous dès maintenant.

Nous écrire
Les champs indiqués par un astérisque (*) sont obligatoires
À découvrir
Joint de dilatation dalle béton pour espaces piéton en pavés

Joint de dilatation dalle béton pour espaces piéton en pavés

Découvrez pourquoi l'installation d’un joint de dilatation pour dalle béton est essentielle pour les espaces piéton en béton ou en pavés. Faites appel aux experts des Ateliers de Bréau pour garantir la durabilité de vos aménagements extérieurs.
En savoir plus
Joint de dilatation avec goujons pour projet aménagement urbain

Joint de dilatation avec goujons pour projet aménagement urbain

Découvrez nos solutions de joints de dilatation avec goujons pour vos projets d'aménagement urbain. Les Ateliers de Bréau vous garantissent des produits durables et sur-mesure. Contactez-nous pour une expertise et un devis adapté.
En savoir plus
Joint dilatation avec goujons pour surface béton parking

Joint dilatation avec goujons pour surface béton parking

Découvrez comment les Ateliers de Bréau utilisent des goujons dans les joints dilatation pour optimiser la durabilité des surfaces béton des parkings. Expertise et solutions professionnelles.
En savoir plus
Plus de 15 ans<br> de savoir-faire
Plus de 15 ans
de savoir-faire
Joints standard disponible jusqu'à 3m
Joints standard disponible jusqu'à 3m
Fabrication de joints sur-mesure et spécifiques
Fabrication de joints sur-mesure et spécifiques
Vous souhaitez des renseignements
sur nos prestations ?
Contactez-nous