1. Accueil
  2. Joints de dilatation spécifiques
  3. Joint de dilatation dalle béton pour station de bus
Retour

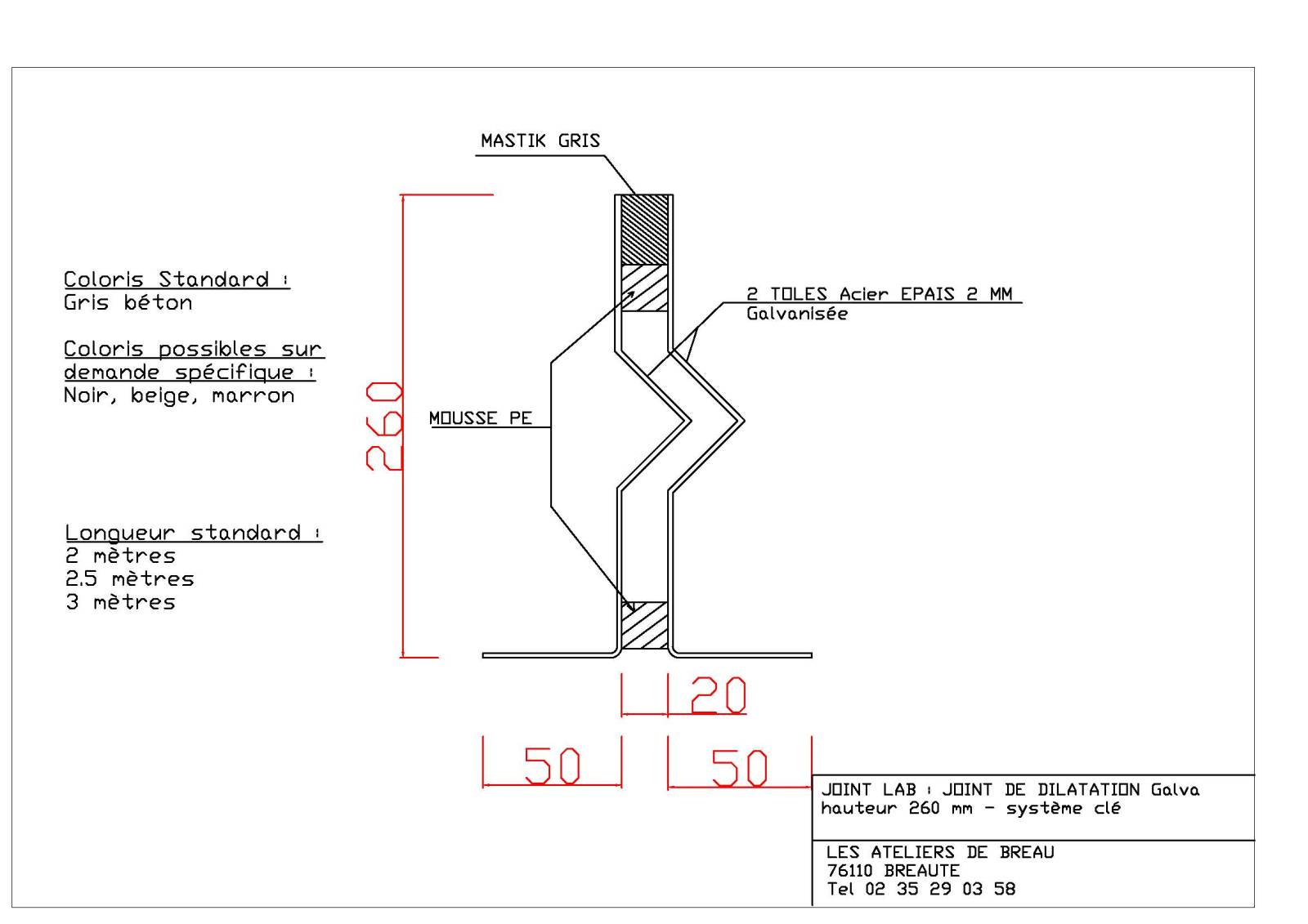
Joint de dilatation dalle béton pour station de bus

Les joints de dilatation sont essentiels pour garantir la durabilité des infrastructures soumises à des contraintes thermiques importantes. Dans une station d’arrêt de bus, la dalle béton doit absorber les variations de température et les charges dynamiques sans se fissurer.

Les Ateliers de Bréau proposent des solutions robustes adaptées à vos projets, garantissant la longévité des ouvrages bétonnés. Une maîtrise rigoureuse des matériaux et des techniques vous assure des résultats à la hauteur des attentes.

Faites appel aux Ateliers de Bréau pour l’intégration de joints de dilatation dans les dalles en béton. Contactez nos experts dès maintenant pour un accompagnement personnalisé.

Nous écrire
Les champs indiqués par un astérisque (*) sont obligatoires
À découvrir
Joint de dilatation dalle béton pour travaux de maçonnerie extérieur

Joint de dilatation dalle béton pour travaux de maçonnerie extérieur

Protégez vos ouvrages en béton avec un joint de dilatation dalle béton. Découvrez les solutions sur-mesure des Ateliers de Bréau pour vos travaux de maçonnerie extérieure.
En savoir plus
Joint de dilatation avec goujons pour projet aménagement urbain

Joint de dilatation avec goujons pour projet aménagement urbain

Découvrez nos solutions de joints de dilatation avec goujons pour vos projets d'aménagement urbain. Les Ateliers de Bréau vous garantissent des produits durables et sur-mesure. Contactez-nous pour une expertise et un devis adapté.
En savoir plus
Joint de dilatation pour dalle béton sur-mesure

Joint de dilatation pour dalle béton sur-mesure

Les Ateliers de Bréau conçoivent des joints de dilatation pour dalle béton sur-mesure. Profitez de notre expertise pour sécuriser vos ouvrages. Contactez-nous pour un devis adapté.
En savoir plus
Plus de 15 ans<br> de savoir-faire
Plus de 15 ans
de savoir-faire
Joints standard disponible jusqu'à 3m
Joints standard disponible jusqu'à 3m
Fabrication de joints sur-mesure et spécifiques
Fabrication de joints sur-mesure et spécifiques
Vous souhaitez des renseignements
sur nos prestations ?
Contactez-nous